Коттеджи: малоэтажный жилой дом «l-house»

 
 

Адрес: Московская область, пос. Нахабино, 2004 г.
Архитекторы: Волков А.
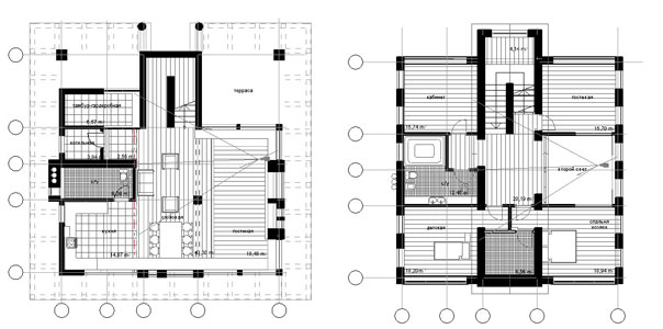
Площадь: 180м2

Заказчик, работающий в области полиграфического дизайна, искал ярких, нестандартных решений, отвечающих его творческой натуре. Дом обязательно должен был выделяться среди окружающей застройки. В то же время за рамки привычных строительных материалов и традиционной для русского загородного строительства типологии дома выходить не хотелось. Попытки удивить общественность и посочетать несочетаемое привели к появлению на свет красочного дома­игрушки. При отказе от новомодных архитектурных приемов главным выразительным элементом здания стала цветная контрастная облицовка фасадов. Красный и синий визуально разграничивают объемы второго этажа и отделяют их от темного нижнего яруса. Кажется, что дом составлен из деталей детского строительного конструктора. Впечатление игры усиливается разнообразием форм и расположений многочисленных оконных проемов, которые обеспечивают отличную инсоляцию внутренних помещений.

Проект опубликован в журнале 100% загородный дом №2, 2004 стр.100



 
 

При использовании материалов сайта ссылка на ресурс обязательна

+ контакты