Общественное: Московский офис компании «NEXSANS»

 
 

Адрес: БЦ «Аркадия» Москва, Овчинниковская наб., 8
АРХИТЕКТОРЫ:  Волков А.
ИСПОЛНИТЕЛИ: «НАТАЛЕКС» (перегородки),
ЭКО-СКАН (напольные покрытия),«СОЛО» (мебель)
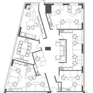
ПЛОЩАДЬ: 200 м2

Московский офис французкой корпорации «Nexans» по производству кабельной продукции, мировой лидер в своей области.Требовалось создать функциональное, светлое  рабочее пространство, подчёркивающее имидж компании с мировым именем, сохраняя при этом демократичную обстановку
в коллективе и позитивный настрой сотрудников. В планировке офиса есть две зоны: рабочая и общественная. Зону рабочих кабинетов и переговорной, раскинувшуюся по периметру офиса «разрезает» яркое, гостеприимное пространство холла-приёмной, пронизанное светом проходящим сквозь стеклянные перегородки.

В отделке интерьера присутствует контрастное сочетание красного и серого цветов в отделке пола, что продиктовано наличием такого сочетания в фирменной символике компании, также образ интерьера дополняет светлый шпон берёзы в отделке мебели и дверных проёмов и стекло в алюминиевых рамах перегородок.



 
 

При использовании материалов сайта ссылка на ресурс обязательна

+ контакты