Коттеджи: «дом у реки»

 
 

Адрес: Тульская область
АРХИТЕКТОРЫ:  Волков А.
ПЛОЩАДЬ: 200 м2

ИСХОДНЫЕ ДАННЫЕ:  Участок 0,39 га находится на берегу реки Снежедь и вытянут с востока на запад. В том же направлении имеется небольшой уклон.

ТРЕБОВАНИЯ ЗАКАЗЧИКА: Дом для семейного отдыха круглый год — «дача повышенной комфортности».

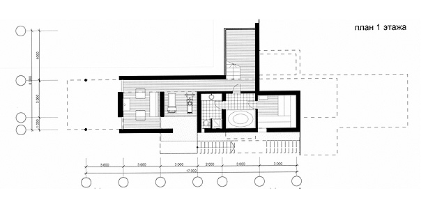
КОНЦЕПЦИЯ: Здание представляет собой бетонный вытянутый параллелепипед. Перпендикулярно расположено несколько модулей, отделанных разными материалами и различающихся функционально. Так, при помощи выступающего оштукатуренного навеса создается «воздушный объем» и организуется входная зона, за которой следует деревянный модуль — жилой блок. Он отличается от общих помещений, в отделке которых используется строгий прохладный бетон. Другой модуль
в центральной части дома пересекается  небольшой балкон, с другой — выступает и создает пространство для лестницы.



 
 
 
 

При использовании материалов сайта ссылка на ресурс обязательна

+ контакты