Коттеджи: малоэтажный жилой дом «V-house»

 
 

АДРЕС:  Московская область, пос.Переделкино
АРХИТЕКТОР:  Волков А.
ИСПОЛНИТЕЛИ: ООО «Онтек» (строительство)
ПЛОЩАДЬ: 280 м2

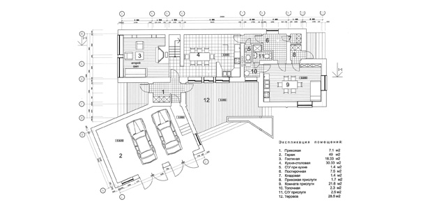
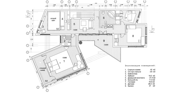
На участке неправильной формы планировалось построить дом для постоянного проживания семьи из трех человек. Причем строение необходимо было не просто вписать в окружающий контекст, но аккуратно разместить между тремя старыми елями и  забором соседей. Именно этим обстоятельством и было обусловлено трехчастное деление дома и асимметричная его конфигурация.  В процессе строительства, уже после закладки фундамента, выяснилось, что деревья старые и стволы внутри полые, поэтому сохранить ели не было никакой возможности и они подлежали спилу. Однако благодаря фантазии архитектора еловые стволы обрели вторую жизнь, став оригинальной опорой для балкона и украшением террасы. Соседний дом построен практически вплотную к забору, и  чтобы изолировать жизнь обитателей коттеджа от посторонних взглядов, пришлось ориентировать все окна в доме в сторону участка. Кроме того, такое решение позволило справиться с проблемой инсоляции помещений. На участке много высоких крупномеров, елей и сосен, лиственниц и берез, поэтому он затенен. Размещение всех окон с южной стороны позволяет солнечному свету проникать в разные помещения дома практически целый день.



 
 
 
 

При использовании материалов сайта ссылка на ресурс обязательна

+ контакты